

技术参数:
| 材料: | |
| -阀体 | 铸造黄铜 CuZn35Al |
| -阀芯 | 黄铜 / 不锈钢 |
| 237.5100-xxx-0 | |
| 密封套件 | 丁腈橡胶 |
| 最大工作压力 | 10 bar |
| 允许最大压差 | 10 bar |
| 公称压力 | PN 10 |
| 连接方式 | 外螺纹 G 1 1/4" |
| 重量 | 1 Kg |
可提供温度控制范围: | ||||
| 04 – 11 ℃ | 35 – 46 ℃ | 49 – 60 ℃ | 68 – 77 ℃ | 93 – 101 ℃ |
| 22 – 30 ℃ | 39 – 49 ℃ | 54 – 65 ℃ | 76 – 88 ℃ | 97 – 107 ℃ * |
| 29 – 40 ℃ | 43 – 54 ℃ | 60 – 71 ℃ | 82 – 93 ℃ | 101 – 121 ℃ ** |
ⓘ 连续工作的最高温度不能超过AKO温度控制阀全开温度15 ℃。
* AKO温度控制阀最高工作温度120 ℃。
** AKO温度控制阀最高工作温度125 ℃。
AKO温度控制阀的安装位置不同作用也不同。
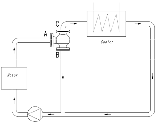
作为分流阀:
➣ 路径A:从电机来
➣ 路径B:去旁路
➣ 路径C:去冷却器

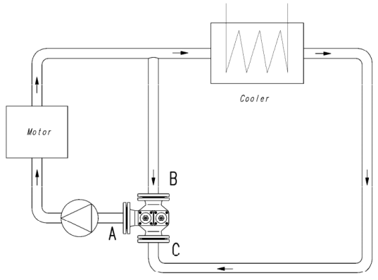
作为混合阀:
➣ 路径C:从冷却器来
➣ 路径B:从旁路来
➣ 路径A:去电机

路径已经标注在接口处,AKO温度控制阀可以根据需要安装在不同位置。
AKO温度控制阀适用于稳定介质温度(例如:水、油等),在应用中可以用作分流阀,也可以用作混合阀。该AKO温度控制阀的优点是免维护、操作方便、耐压能力强。更换阀内件无需把AKO温度控制阀从管道上拆下,错误的安装除外。AKO温度控制阀可以安装在任何位置。典型应用为水冷系统与油冷系统。
AKO温度控制阀内部配有容易更换的充蜡阀芯,阀芯的个数取决于AKO温度控制阀的公称通径。该阀芯通过吸收周围介质的温度,随即开始膨胀,改变自身长度(阀门行程),从而改变阀门路径。AKO温度控制阀不需要任何辅助能源,随着温度上升,超过了该AKO温度控制阀的开启温度,阀门内部的管状滑块随即被从阀座上提起,路径A到C的通道打开,与此同时,路径A到B的通道被同比例关闭。通道的开闭变化与流经AKO温度控制阀介质的温度变化成比例。


AKO Regelungstechnik GmbH & Co KG